info_at_asgari-immobilien.de

089 / 2424 4695

Immobilienangebote

1
VERKAUFT !
Gartenansicht aus Südwest | Verkauf Haus - Grünwald
Gartenansicht aus Südwest
2
VERKAUFT !
Straßenansicht | Verkauf Haus - Grünwald
Straßenansicht
3
VERKAUFT !
Wohnbereich EG | Verkauf Haus - Grünwald
Wohnbereich EG
++ TOP VERKAUFT ! ++
82031 Grünwald

Edle Luxus-Neubau-Villa in idyllischer Premiumlage von Grünwald

Traumhaft ruhig, besonders idyllisch und darüber hinaus absolut sonnenverwöhnt gelegen, präsentiert sich das Grundstück, auf welchem diese besonders schöne und edle Villa im klassischen Stil errichtet wird. Die Villa wird im Rahmen des im Exposé näher beschriebenen Neubauprojektes als eine von drei jeweils individuell unterschiedlichen Villen mit einem besonders hohen Qualitätsanspruch an die Ausführung und Ausstattung erbaut. Mit insgesamt sieben Räumen auf ca. 235 Quadratmetern Wohnfläche bietet das hier umschriebene, edle Wohnhaus sehr viel Platz. Der vorherrschende Qualitätsanspruch und die zeitlose Eleganz in den Räumlichkeiten wird geprägt durch eine entsprechend hochwertige und luxuriöse Ausstattung mit großformatigen Landhausdielen-Parkett und Fenstern aus Holz. Diese Eleganz spiegelt sich auch in den hochwertigst ausgestatteten, in Naturstein gehaltenen Bädern mit Armaturen von Premiumherstellern wider. Technische Details wie u.a. ein Bussystem und umfassende Sicherheitsfeatures runden das qualitative Angebot ab. Mit einer Fläche von ca. 63 Quadratmetern für den Wohnbereich mit offener Küche ist der Hauptaufenthaltsort des Hauses angenehm großzügig angelegt. Die großflächige Verglasungen zur Süd- und Westseite lassen überdies sehr viel Licht herein. So entsteht ein Maximum an luxuriöser Wohnlichkeit, die sich durch das gesamte Haus zieht. Als selten zu findende Besonderheit ist die Doppelgarage voll unterkellert und bietet somit zusätzlichen Stauraum. Die Doppelgarage ist im Kaufpreis enthalten.

Objekt-/Ortsangaben
Ort:

82031 Grünwald

Die vollständige Objektadresse wird im Exposé benannt.
Objekt-ID:
ai-AF05G-X | ai-AF05G-3 (verkauft)

Preis | Investition
Kaufpreis:
--
Kaufpreis Garage/Stellplatz:
--

Eckdaten | Ausstattungsmerkmale
Immobilie Typ:

Villa

Nutzung:
Wohnen
Wohnfläche ca.:
235,0 m²
Nutzfläche ca.:
94,0 m²
Grundstücksfläche ca.:
451 m²
Zimmer Gesamt:
7
Badezimmer:
3
Separate WC:
4
KFZ-Stellplätze:
2
Stellplatzart(en):
Garage
Features:
Kamin od. Schwedenofen Balkon od. Terrasse Garten Rolläden Alarmanlage Gäste-WC Sauna Wellnessbereich

Bausubstanz
Altersklasse:
Neubau
Zustand:
Erstbezug
Qualität der Ausstattung:
Luxus
Konstuktionsart:
Massive Bauweise
Keller:
Voll unterkellert
Befeuerung:
Erdwärme/Geothermie
Heizung:
Fußbodenheizung

Ausstattung
KOMFORT UND LIFESTYLE: + Hohe Räumlichkeiten ( z.B. Erdgeschoss 2,90 m ) + Kassetten-Innentüren im klassischen Stil, umlaufend profiliert + Echtholzparkett in Ausführung als großformatige Landhausdielen + Natursteinbäder mit Einrichtung von Premiumherstellern wie Dornbracht, VitrA, Hoesch + Wellnessbereich + Bus-Steuerungssystem + Doppelgarage (unterkellert !) INTEGRIERTE SICHERHEITSFEATURES: + Alarmanlage ( Einbruchmeldeanlage ) + Videogegensprechanlage + Holzfenster ( 3-fach-verglast, Pilzkopfverriegelung, teils einbruchhemmende Verglasung ) + El. Rollläden OPTIMALES RAUMKLIMA + UMWELTBEWUSSTSEIN: + Zentrale Lüftungsanlage mit Wärmerückgewinnung + Heizkamin im Wohnzimmer + Geothermie zur Beheizung u. Warmwasseraufbereitung ARCHITEKTUR: + Massivhaus + Klassisches Gesims + 3 Geschosse ( UG + EG + DG ) + Raumhöhen je ca.: EG 2,90 m / DG bis 2,61 m ( abgehängte Decke ) / UG 2,61 m ENERGIEBEDARF/ENERGIEAUSWEIS: Da es sich um einen Neubau handelt, wird der Energieausweis gem. EnEV §16 Abs. 1 Satz 2 nach Fertigstellung ausgestellt und übergeben. Es liegt uns eine vorläufige Energieberechnung nach EnEV mit folgendem Energiebedarf vor: Endenergiebedarf: 13.844 kWh/a Primärenergiebedarf: 4.949 kWh/a

Grundrisse
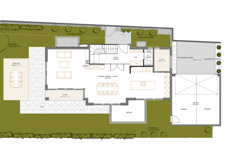
1
VERKAUFT !
Grundriss EG mit Garten | Verkauf Haus - Grünwald
Grundriss EG mit Garten
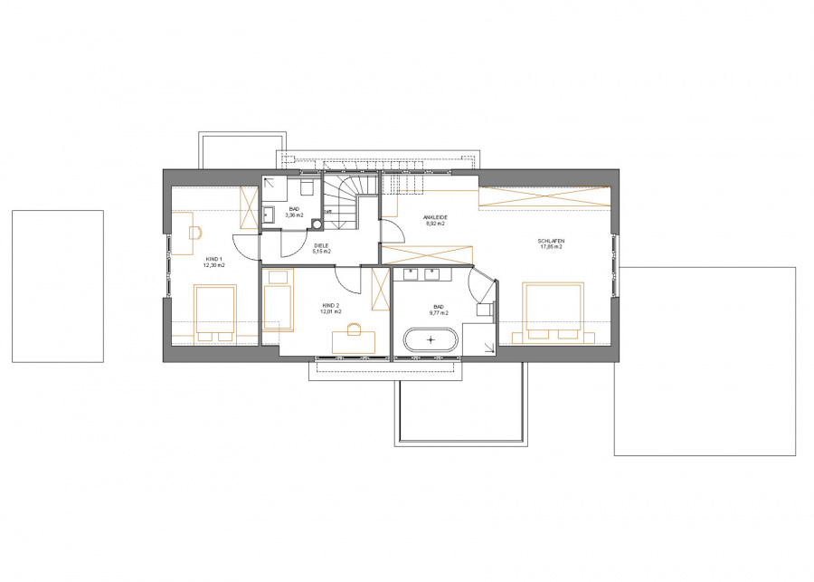
2
VERKAUFT !
Grundriss OG (Version 1) | Verkauf Haus - Grünwald
Grundriss OG (Version 1)
3
VERKAUFT !
Grundriss UG | Verkauf Haus - Grünwald
Grundriss UG

Lagebeschreibung
Makrolage Grünwald zählt bekanntermaßen zu den exklusivsten Wohnlagen Deutschlands und hat insbesondere durch den Neubau des nahe gelegenen, sprachlich naturwissenschaftlichen Gymnasiums enorm an zusätzlicher Beliebtheit gewonnen. Grünwald ist geprägt von einer lockeren Villenbebauung mit viel Grün und gehört nicht zuletzt zu den begehrtesten Flecken im Kreis München. Die stetige Investition in die Infrastruktur, wie z.B. in den Ausbau des Erdwärmenetzes und in die Glasfasertechnik aber auch die besonders günstige Gewerbesteuer machen den Ort zusätzlich besonders attraktiv. Von Grünwald aus gelangen Sie über in alle vier Himmelsrichtungen verlaufende Hauptrouten überall sehr gut hin, ganz gleich, ob Sie am Wochenende einen Ausflug zum Starnberger See oder Richtung Berge unternehmen möchten, oder Sie beruflich oder auch nur zum Bummeln in der Landeshauptstadt zu tun haben. Auch die Anbindung zum Flughafen ist durch die Ostumfahrung bestens gelöst. Mikrolage Das Grundstück liegt extrem ruhig, idyllisch sowie sonnenverwöhnt in der besonders begehrten Villengegend Grünwalds. Nur wenige Minuten entfernt finden sich Kindergärten, Schulen, Gesundheitseinrichtungen sowie Geschäfte des täglichen Bedarfs. Sollte ein Familienmitglied einmal dringend einen Arzt benötigen, finden Sie neben vielen niedergelassenen Ärzten auch diverse renommierte Kliniken im nahe gelegenen Harlaching. Sie bevorzugen öffentliche Verkehrsmittel? Die Trambahn 25 verbindet Grünwald mit dem Münchner U-Bahn- und Busnetz. Sowohl die nächste Haltestelle für die Trambahn, als auch für den Schulbus liegen in unmittelbarer Nähe. So gelangen Sie also auch ohne Auto bequem und sicher sowohl in die Münchener Innenstadt als auch in das nahe gelegene Ortszentrum Grünwalds. Nur einige Beispiele für all die vielen, abwechslungsreichen Freizeitgestaltungsmöglichkeiten, die sich Ihnen hier bieten ... Der ausgedehnte Grünwalder Forst ist zu Fuß sehr schnell zu erreichen. Dieser ist zu jeder Jahreszeit und bei jedem Wetter schön und lädt zu allen möglichen Sportarten sowie zum Spazierengehen ein. Die westlich gelegene Isar können Sie von hier aus sehr gut zu Fuss bei einem Spaziergang erkunden. Über die Grünwalder Brücke können Sie auch mal einen kleinen Abstecher mit dem Rad auf die andere Isarseite nach Pullach unternehmen. Insbesondere im Frühjahr und Sommer locken diverse Biergärten und Restaurants in den unterschiedlichsten Himmelsrichtungen. Oder Sie gehen mit den Kids in den nahe gelegenen Kletterpark. Im Konzertsaal des „Haus der Musik“ genießen Sie wundervolle Darbietungen hochkarätiger, internationaler Künstler.

Sonstiges
Dieses Haus haben wir erfolgreich verkauft! Es wurde ein optimals Verkaufsergebnis erzielt.

Links

Möchten auch Sie Ihr Haus erfolgreich mit optimalem Ergebnis verkaufen oder vermieten?

Wir sind Ihr erfahrener Immobilienmakler und Verkaufspezialist im Raum München.
Schreiben Sie uns oder rufen Sie einfach an !


Newsletter - Bleiben Sie gut informiert :

Zustimmung zur Datenverarbeitung gem. DSGVO*:
[ Unsere Datenschutzerklärung lesen Sie bitte hier ]

* Pflichtfelder

Immobilie verkaufen? Wir machen das!

Gerne bewerten wir Ihre Immobilie. Kostenlos und unverbindlich.

asgari immobilien

Christian Asgari
Dipl. Des. / Gepr. Immobilien Manager (gtw)

Maximilianstraße 2
80539 München

Tel: +49 (0)89 2424 4695
Fax: +49 (0)89 7240 3762

E-mail: info_at_asgari-immobilien.de